42 Craighill Road, ST GEORGES SA 5064
Auction Saturday, 21 February at 1:00pm
Blue Chip Location – Idyllic Inner-East Living on a Prime Corner Allotment!
Perfectly positioned on a corner allotment of approximately 640sqm, this charming, freestanding solid brick residence dating back to the 1950s presents an exceptional opportunity in one of Adelaide’s most tightly held and prestigious Eastern suburbs and enjoying sweeping city and suburban outlooks, the property offers immediate comfort today with exciting future potential.
Option One – Move straight in and enjoy
The existing home has been tastefully updated and is ready to be lived in or leased immediately. Inside, high ceilings, modern neutral tones, plush carpeting, and large windows create a light-filled and welcoming atmosphere. The renovated kitchen features stainless steel appliances, generous bench space, and ample cabinetry, while the contemporary bathroom adds everyday convenience. Spacious front and rear yards provide plenty of room for entertaining, relaxing, or family enjoyment, with the front patio perfectly positioned to capture the outlook across the neighbourhood.
Option Two – Land bank and invest
With strong rental appeal and solid construction, this property presents an excellent land-banking opportunity in a high-growth, blue-chip location. Secure today, lease out, and hold for the future while capital growth does the heavy lifting.
Option Three – Demolish and build your dream home (STCC)
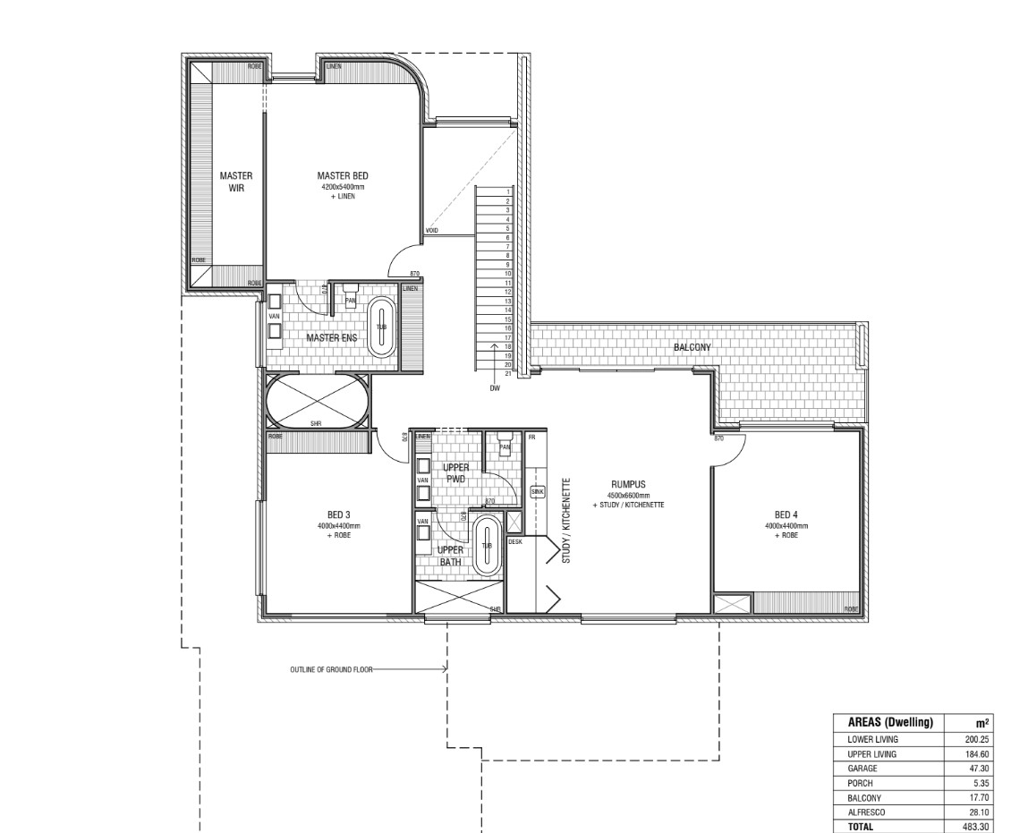
The generous corner allotment opens the door to an exciting redevelopment opportunity. The vendor has provided architectural builder concept plans showcasing a substantial, high-end residence that could be constructed on the site, subject to council consent. These plans are offered as a guide only and demonstrate the scale and lifestyle potential available for those looking to create a landmark family home in this premium location.
Positioned moments from elite schooling including Seymour College, zoned for Linden Park Primary School and Glenunga International High School, close to boutique shopping at the recently upgraded Burnside Village, and within easy reach of the CBD, Norwood Parade, and public transport — this address delivers lifestyle, convenience, and long-term value in equal measure.
Whether you’re seeking a home to enjoy now, a strategic investment, or a blank canvas to realise your dream build (STCC), opportunities of this calibre in such a tightly held locale are increasingly rare.
Property Features
- House
- 3 bed
- 1 bath
- 2 Parking Spaces
- Land is 660 m²
- Floor Area is 270 m²
- 2 Carport
- Open Parking Spaces
- Dishwasher
- Built In Robes
- Broadband
- Fully Fenced
- 0
Inspection Times
- About
- Contact
- Satellite


















